Modern and flexible office on the 3rd floor

World Trade Center Ballerup is an attractive multi-tenant building where insight and outlook—knowledge and networking—go hand in hand. Here, small start-ups work side-by-side with large organisations, sharing everything from meeting rooms to great ideas. This provides flexibility, fosters networking and has an impact on the bottom line.

World Trade Center Ballerup comprises more than 38,000 m² and offers all the facilities and services expected of a modern business centre: office space, restaurant, meeting, exhibition and conference facilities, fitness centre, Healthcare Center, serviced apartments, and a staffed reception that is always ready to assist you.

World Trade Center Ballerup is located in one of Denmark’s largest business districts, which, with strong infrastructure and a central location, attracts major Danish and international companies.

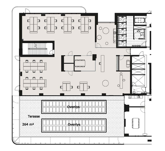
The premises comprise one large open-plan area as well as 4 smaller meeting rooms/quiet rooms/offices/print rooms. The premises offer many possibilities for an exciting fit-out.

World Trade Center Ballerup is certified by the World Trade Centers Association, your guarantee that we meet the highest standards in office construction, facilities and services. As a company at World Trade Center Ballerup, you become part of an exclusive group with members worldwide – an international network that, with more than 300 centres in over 90 countries, can help your business access new markets in and outside Denmark.

Modern and flexible office on the 3rd floor

Available

Borupvang 3
2750 Ballerup

Case number: H3.1

Office

614 m²

Floor: 3

Seats: 32 (max)

Access to meeting rooms

Sustainability certificate DGNB - Silver

Energy label A(2010)

Rental from

(excl. operations and consumption)

1425

DKK pr. m²

Henriette Bjerg Persson

Director / CEO

Modern and flexible office on the 3rd floor

Please complete the form below. We will then contact you regarding a viewing.

Modern and flexible office on the 3rd floor

Please complete the form below. We will then contact you regarding a viewing.