Modern office premises on the 6th floor

World Trade Center Ballerup is an attractive multi-tenant building where insight and perspective—knowledge and networking—go hand in hand. Here, small start-ups work side-by-side with large organisations, sharing everything from meeting rooms to great ideas. This provides flexibility, fosters networking and has an impact on the bottom line.

World Trade Center Ballerup comprises 38,000 m2 and offers all the facilities and services expected of a modern business centre: office premises, restaurant, meeting, exhibition and conference facilities, fitness centre, Healthcare Center, serviced apartments, and a staffed reception that is always ready to assist you.

World Trade Center Ballerup is located in one of Denmark’s largest business districts, which—with strong infrastructure and a central location—attracts major Danish and international companies.

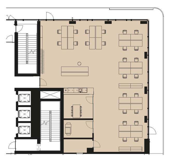
The premises consist of one large open space as well as 3 smaller meeting rooms/quiet rooms/offices. The premises offer many possibilities for an exciting layout.

World Trade Center Ballerup is certified by the World Trade Centers Association, your guarantee that we meet the highest standards in office construction, facilities and services. As a company in World Trade Center Ballerup, you automatically become part of an exclusive group with members all over the world – an international network that, with more than 300 centres in more than 100 countries, can help your business reach new markets in Denmark and beyond.

Modern office premises on the 6th floor

Not vacant

Borupvang 3,
2750 Ballerup

Case number: H6.2

Office

373 m²

Floor: 6

Seats: 24 (max)

Access to meeting rooms

Sustainability certificate DGNB - Silver

Energy label A(2010)

Rental from

(excl. operations and consumption)

1425

DKK pr. m²

Henriette Bjerg Persson

Director / CEO

Modern office premises on the 6th floor

Please complete the form below. We will then contact you regarding a viewing.

Modern office premises on the 6th floor

Please complete the form below. We will then contact you regarding a viewing.