Office lease of 354 m² – modern, flexible and ready for occupancy

In the attractive and internationally certified World Trade Center Ballerup, a spacious and functional office lease of 354 m² is now available, ideal for companies seeking a professional environment with access to first-class facilities and a strong business network.

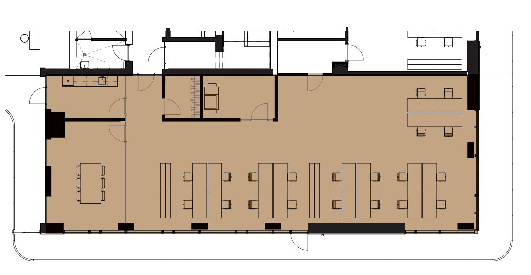
The premises comprise one large, bright and open office area, offering optimal opportunities for flexible layout—whether the company wants a dynamic open-plan office, project zones or team areas. In addition, there are three smaller rooms that can be used as meeting rooms, quiet rooms or individual offices.

The premises are also equipped with a private kitchen, perfect for both lunch breaks and informal meetings, while shared toilets are located just outside the door in the corridor.

As part of World Trade Center Ballerup, you will have access to a modern multi-tenant building of 38,000 m² with every conceivable facility: restaurant, fitness centre, staffed reception, meeting and conference facilities, Healthcare Center and serviced apartments—all under one roof.

Here, startups, scaleups and large established companies work side by side and share both facilities and ideas. This creates synergy, flexibility and networking that can be felt in growth and the bottom line.

With its location in one of Denmark’s largest and best-connected business areas, close to both the motorway network and public transport, WTC Ballerup offers a central and professional base for companies with national and international ambitions.

As a certified World Trade Center, you also gain access to a global network of more than 300 centres in over 90 countries—a unique opportunity for companies looking to broaden their horizons and open the doors to new markets.

Office lease of 354 m² – modern, flexible and ready for occupancy

Available

Borupvang 3,
2750 Ballerup

Case number: H1.3

Office

354 m²

Floor: 1

Seats: 20 (max)

Access to meeting rooms

Sustainability certificate DGNB - Silver

Energy label A(2010)

Takeover date: By appointment

Rental from

(excl. operations and consumption)

1425

DKK pr. m²

Henriette Bjerg Persson

Director / CEO

Office lease of 354 m² – modern, flexible and ready for occupancy

Please complete the form below. We will then contact you regarding a viewing.

Office lease of 354 m² – modern, flexible and ready for occupancy

Please complete the form below. We will then contact you regarding a viewing.